Arquitectura:
buerger katsota architectsUbicación: Santa Maria, Paros, Grecia
Equipo: Stephan Buerger, Demetra Katsota, Tassos Govatsos, Anna Karagianni, Mladen Stamenic
Consultores: Panagiotis Panagotopoulos (structural engineering), D P Kryfos OE (mechanical and electrical engineering),Scape (landscape design)
Consumo de Energía: 28.3 kWh/(m²a)
Año Proyecto: 2010
Área Sitio: 9,500 m2
Área Proyecto: 430 m2
Fotografías: Dimitris Kalapodas
El esquema tiene por objeto responder a las necesidades diferentes de dos familias en vacaciones. El único volumen de un edificio se divide en unos pequeños, diferentes en altura y tamaño, colocados libremente, pero en relación a los otros resultando un conjunto. El conjunto está situado sobre una piedra sólida y una plataforma de hormigón en 80 cm por encima de un campo agrícola inmediatamente adyacente al mar.
El sitio ofrece unas vistas espectaculares a la bahía, el mar y la isla de Naxos. El conjunto situado en la zona edificable designada por las leyes de planificación, busca aprovechar las vistas que ofrece su ubicación y orientar todos sus espacios internos y la sombra hacia el mar y el espectacular paisaje del entorno.


Visto desde el mar, el conjunto es una colección de volúmenes individuales que constituyen un acuerdo unificado bajo el horizonte de un dosel. Desplazado hacia la plataforma en el primer nivel, el dosel translucido (16m x 52m) se encuentra en voladizo desde los volúmenes cambiantes, delimitando más de 500 m² de espacios de sombra y ofreciendo un sinfín de posibilidades para la apropiación al aire libre. Los cambios de los volúmenes crean una variedad de nichos, extrusiones y espacios logrando una plasticidad de la forma, sin embargo, una arquitectura de cohesión, tanto en el interior y el exterior- que reflexiona sobre, respeta y responde a la arquitectura de las Cícladas.


Esta disposición permite cambiar la definición de varios espacios al aire libre y salas, incluyendo terrazas para el desayuno con cocinas al aire libre, una terraza con una barbacoa y una terraza para las proyecciones de la noche. En cuanto a los interiores, los espacios privados, como las unidades húmedas y áreas de descanso se acomodan en los volúmenes, mientras que lo “público”; zonas de estar de cada casa se alojan en sus espacios intermedios, como extensiones de la naturaleza.

Pensando en proporcionar un sentido de continuidad a la arquitectura tradicional de las Cícladas, los volúmenes están perforados con ventanas de altura completa, mientras que las áreas intersticiales de estar tienen grandes ventanas panorámicas, extendiendo todo el ancho del espacio y disponiendo de todas las vistas que abarcan. Los espacios simples y tranquilos permiten que el paisaje forme una poderosa y cambiante presencia, visto a través de las aberturas de altura completa desde el jardín posterior, desde el interior y hacia afuera en la playa y el mar. En la parte superior de los espacios intersticiales, dos terrazas grandes ofrecen otra serie de vistas panorámicas enmarcadas, no sólo hacia el mar, sino también hacia las colinas circundantes.

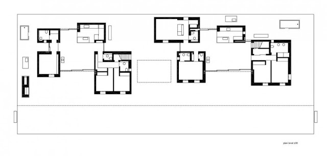
Planta baja
Planta alta
Diseñando para un hogar de vacaciones en las cicladas, se requiere de estrategias climáticas sensibles y sensitivas, con el fin de tomar ventaja al clima particular y a las condiciones medio ambientales definidas por un invierno generalmente leve, abundante de sol durante todo el año, una fuerte radiación solar durante los meses de verano, altas temperaturas y una corta época de agua especialmente durante el tiempo de vacaciones. El extenso pabellón traslúcido actúa como un vasto moderador climático entregando áreas de sombra confortables para su uso durante todo el día, especialmente durante el verano.

El complejo de edificios por estar bien aislado externamente, con sus superficies acristaladas protegidas de la luz solar directa, y estar muy bien conectado a través de sus fundaciones a una masa térmica constante del suelo, evita el sobrecalentamiento durante el verano, por lo que no requiere aire acondicionado o refrigeración mecánica. El sistema de calefacción se basa en un panel solar/caldera de agua caliente, lo que suministra de agua caliente y calefacción por losa radiante con un consumo eficiente y de baja dependencia de combustibles fósiles.

En cuanto a la gestión del agua, se ponen en marcha dos sistemas de reciclaje para el suministro de agua para el riego. El primero recoge todas las aguas residuales grises y lo trata a través de una serie de avanzados tanques de sedimentación, mientras que el segundo recoge el agua de lluvia en un tanque de 300 m3 integrado en la plataforma. El diseño paisajístico ha sido cuidadosamente desarrollado para hacer uso del agua recogida anualmente, sin depender de los suministros adicionales.
Vistas
Cortes