La Arquitectura está reprimida por la costumbre, los estilos son una mentira. Le Corbusier
lunes, 11 de marzo de 2013
CASA MODULAR
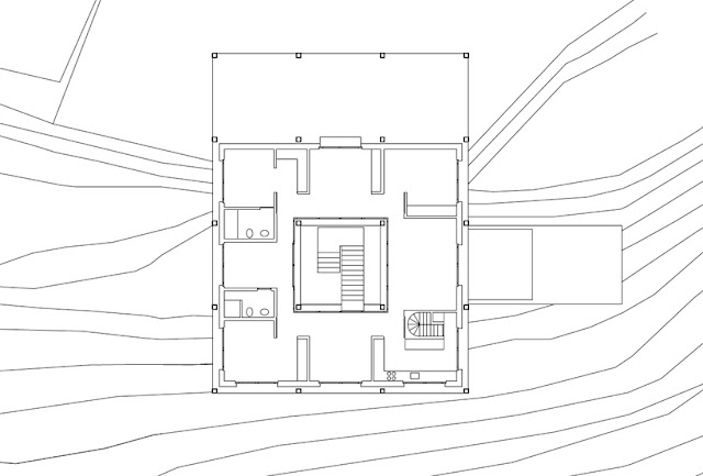
Parcialmente incrustada en una pequeña colina, pero articulada, la 'casa en Sonvico' de architetti pedrozzi Saravia y Díaz incluye todo el programa de necesidades en un nivel horizontal entre dos planos de hormigón armado. En los extremos sobresalen dos columnas circulares donde se resguardan las funciones de servicio, son apoyos macizos por encima de un patio parcialmente cubierto con una escalera que nos lleva a la entrada principal. Una malla regular de columnas demarca un orden racional para espacios interiores y exteriores, con un vacío central que permite la luz natural en todas las partes de la residencia, así como las vistas al espacio público. Entre los marcos de hormigón visto se revisten los muros de azulejos refractantes blancos y grandes ventanas con marcos de madera natural. Planta Superior
Planta Baja
Corte
Suscribirse a:
Enviar comentarios (Atom)









No hay comentarios:
Publicar un comentario